about
artwork
restoration/design
contact
about
artwork
restoration/design
contact
antipodean view
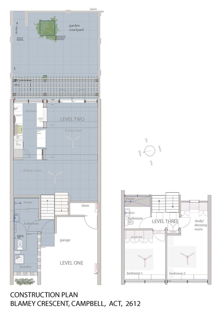
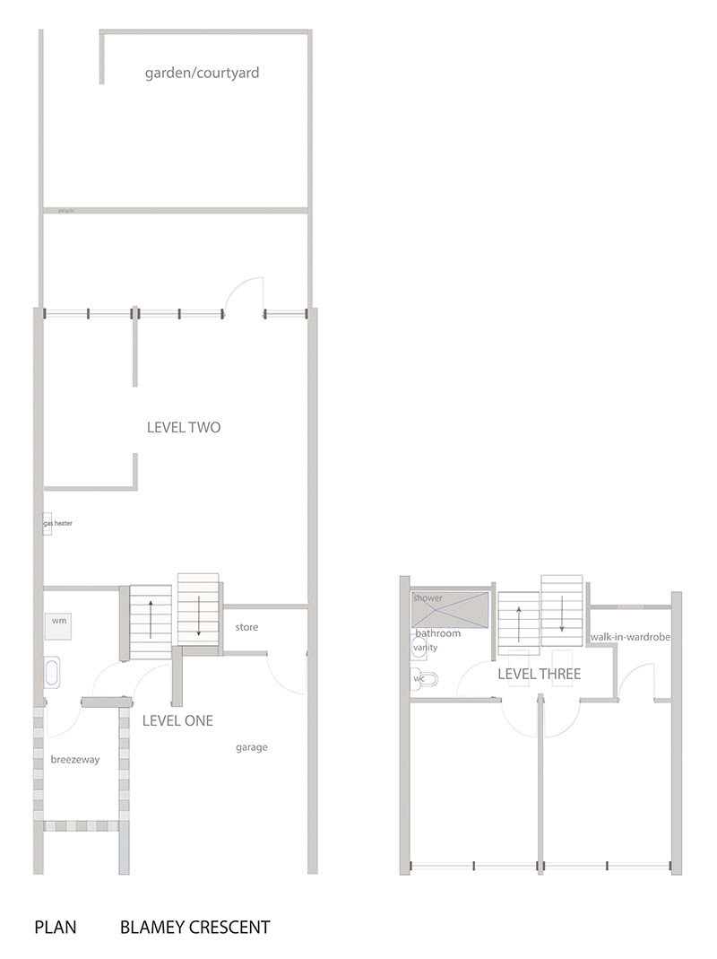
blamey crs
backing onto bushland a renovation of a harry seidler townhouse
You may also like
cunningham street
2017
mckean st
2017
wensley street
2017
balmer street
2017
maynard street
2017
gore street
2017
finch street
2017
↑
Back to Top